NN15 Hawthorn Road, Kettering
- Offers in excess of £200,000
Description
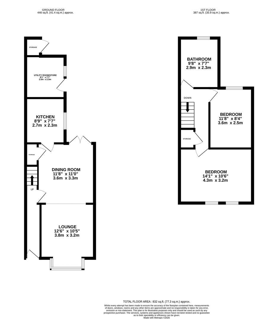
Situated on Hawthorn Road in Kettering, this beautifully presented two-bedroom terraced home offers stylish and well-maintained accommodation, making it an ideal choice for first-time buyers, downsizers or investors. The property is also offered to the market with no onward chain, ensuring a smooth and straightforward purchase. Upon entering, you are welcomed into a bright and inviting lounge/diner, which provides a spacious and versatile living area perfect for both relaxing and entertaining. The room is tastefully decorated and benefits from a natural flow through to the kitchen, creating a practical and sociable layout. The kitchen is well-appointed with a range of units and ample worktop space, catering for all everyday cooking needs. Upstairs, the first floor comprises two generously sized double bedrooms, both offering comfortable accommodation and plenty of space for furnishings. The family bathroom is particularly impressive, featuring a modern four-piece suite including a separate shower and bath, providing both style and convenience. Externally, the property continues to impress. To the rear, there is a low maintenance garden, offering a private outdoor space ideal for relaxing or entertaining without the need for extensive upkeep. With its attractive presentation, spacious layout and convenient location, this home is ready to move straight into and enjoy. The added benefit of no onward chain further enhances its appeal, making it a fantastic opportunity for those looking for a hassle-free purchase in a popular residential area of Kettering.
Property Documents
Address
Open on Google Maps-
Address: Hawthorn Road, Kettering
-
City: Kettering
-
Post Code: NN15 7HT
Details
Updated on April 30, 2026 at 12:00 am-
Price Offers in excess of £200,000
-
Bedrooms 2
-
Bathroom 1
-
Property Type House
-
Property Status Sold STC
Mortgage Calculator
-
Down Payment
-
Loan Amount
-
Monthly Mortgage Payment


















